שכונת ביצרון: דירת קבלן שהפכה לבית מלא נשמה
דירת 110 מ"ר במזרח תל אביב, שתוכננה במקור להשקעה, הפכה לבית חמים לזוג אוהבי מוזיקה, יצירה, מחול ובישול עם שני בניהם המתבגרים. חלל רגוע אך מלא חיים, שבו כל פרט - מהספרייה הענקית ועד הספה הדו-צדדית - מותאם להרגלים, לתשוקות ולתנועה של בני הבית

הדיירים: זוג הורים ושני בנים מתבגרים. האם עוסקת בריקוד ותנועה, האב איש אקדמיה וחינוך שמאוד אוהב לבשל. לכל בני המשפחה אהבה גדולה למוזיקה. הבן הגדול מנגן בגיטרה, הצעיר אוהב לצייר.
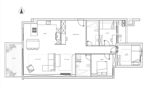
הדירה: דירת 110 מ"ר + מרפסת 12מ"ר בשכונת ביצרון בתל אביב. זוהי דירת 4 חדרים בבניין ישן שעבר תמ"א 38 בפרויקט קבלני של קבוצת ידר. הלקוחות פנו אליי בשלב מתקדם יחסית בפרויקט קבלני, שבו כבר התכנון העקרוני של המטבח היה קיים כולל תשתיות, והדירה כבר עמדה עם קירות חשופים. עשינו שינוים בקירות פנימיים, חשמל ותאורה, תכנון נגרות מלא, תכנון ובחירת גופי תאורה לכל הבית, פרקט בחדרים, ליווי בבחירות גמר מטבח והלבשה.

החזון: הדיירים גרו בדירה שמאוד אהבו באותה שכונה, ותכננו את הדירה הזו להשקעה בלבד. תוך כדי הבנייה הבינו שהם מעוניינים להתרחב ולעבור לדירה הזו. הבחירות שנעשו עד אותה נקודה היו במחשבה של דירה להשקעה. כשאני נכנסתי לתמונה הרצון היה להפוך את הדירה למתאימה ותפורה למידותיהם. בדירה הקודמת היה "וייב" מסויים שהם אהבו, היתה חצר קטנה והמטבח והסלון היו מחוברים, והאתגר היה לגרום להם להתאהב גם בדירת הקבלן, להפוך אותה לביתית ונעימה ולגרום להם להרגיש בבית.


הזוג מאוד אוהב לארח חברים, מוזיקה, יצירה וספרים. המחשבה היתה לייצר קיר אורך אחד לאורך המרחב הציבורי שיכיל את כל התוכן הזה. כולל אוסף כלי הקרמיקה שהאב יוצר, פריטים אהובים, אוסף תקליטים, ספרים, וחלק שלם שמוקדש לפסנתר.
משך השיפוץ: כשנה וחצי .
עלות השיפוץ: כ-300 אלף שקלים, כולל כל השינויים שעשינו מול החברה הקבלנית (שבירת קירות, שינויי חשמל ותאורה, סגירות גבס), נגרות ומסגרות, תאורה והלבשה.



מבואת הכניסה מרווחת ומוארת. מימין ארון גדול ופינת עבודה משמאל מראה + תאורה להתארגנות. מדלת הכניסה כבר אפשר לראות את הפסנתר כחלק מתוך ספרייה ענקית באורך 7.5 מטרים. מהמבואה לצד מזרח יש מסדרון המוביל אל החלק הפרטי ולצד מערב נפתח סלון מלבני מרווח. המרחב חולק לשני סלונים באמצעות ספה דו-צדדית שתוכננה במיוחד. צד אחד שלה פונה לכיוון המרפסת וצופה לנוף מכיוון מערב. הצד השני פונה לקיר מזרחי שעליו מסך ובו גם הפסנתר.
הסלון פתוח למטבח ופינת האוכל. היה לנו חשוב ששולחן האוכל יוכל להיפתח בנוחיות במרחב ושהחלל כולו יידע להכיל אורחים.
את המטבח כאמור תכננו הלקוחות בחברת המטבחים עוד לפני שידעו שהם עצמם יגורו בו. כל התשתיות כבר היו מוכנות ולנו נותר לבחור יחד את הגמרים.


בחלל הפרטי חדר רחצה ילדים, שני חדרי שינה ויחידת הורים. חדרי הילדים לא גדולים, ולכן תוכננה מיטה המכילה אחסון רב. היה לנו חשוב לשמור על ניקיון עיצובי, לאפשר לכל ילד את המרחב האישי והאחסון לתחביבים.




חדר ההורים גם הוא קטן יחסית, והיה מאתגר להכניס לתוכו ארונות בגודל מספק ומיטה. ההחלטה היתה לייצר קיר מיטה ייחודי המכיל אחסון מעל ולצד המיטה. יצרנו קיר גב מיטה גדול, המיטה במרכזו מורחקת מהקיר באמצעות מדרגה המאפשרת אחסון קל לפריטים אישיים. מצידו האחד ארון, בחלקו העליון ארונות אחסון גבוהים. בחלקו השני יצרנו מדפים אינטגרליים בתוך אותה המדרגה. בחדר הרחצה תוכננה נגרות לארונות הכביסה וארון הכיור.


דבר המעצבת: חלק ניכר מהתהליך התרחש בזום כשהזוג בכלל לא בארץ. אני מחוברת מאוד לערכים שהזוג מביא איתו, למשל הבחירה לא לשים את המסך במרכז נתנה לי חופש ליצור עבורם מרחב המכיל כל כך הרבה תוכן, יצירה ותחביבים. אחד האלמנטים האהובים עליי הוא קופסאות האחסון של התקליטים בתוך הספרייה. זה פרט שתכננתי מתוך התבוננות בחנויות תקליטים ואחסון תקליטים. רציתי לאפשר דפדוף קל ונעים בין התקליטים וגם היה לי חשוב לתת במה לעטיפות התקליטים עצמן שהן כמו תערוכה מתחלפת בסלון. המנח הפרונטלי עובד טוב ומחלק את מסת התקליטים בצורה נעימה וקלה לעיון.

טיפ: הבחירה בחומר מרכזי אחד (ליבנה מולבן - בירץ'), שמצד אחד מייצג פשטות נעימה, שקט ומינימליזם, ומצד שני מאפשר משחק טקסטורות וחלוקות שיצרו מקצב מעניין בלי להעמיס. העין משוטטת בנעימים הלוך ושוב. לפעמים בחירה במיעוט חומרים נותנת שקט ויזואלי שנעים לחיות איתו, והעניין מיוצר באמצעות טקסטורה משתנה, קומפוזיציה וחלוקות.
פריט אהוב: הספה הדו-צדדית מדויקת לחלל ולדיירי הבית. היא מאפשרת קומפוזיציות שונות של תנועה במרחב והדיירים מדווחים שהם והילדים מתגלגלים ומתהפכים בחופשיות מצד לצד, מה שכמובן מתחבר גם לעולמות הריקוד והתנועה שהאם עוסקת בהם.

רשימת מכולת:
שולחן אוכל נפתח עץ מלא, תומיק, 13,500 שקל
אהיל מעל פינת אוכל, סטודיו ויהי, 2,200 שקל
ספה דו צדדית בהתאמה אישית, אסף רהיטים, 24,000 שקל
כיסא פינת עבודה, טולמנס, 490 שקל
עיצוב פנים: יעל אביב
תאורה: כלי אור
נגרות: נגריית ארז אילוז