בנו בית מרווח על מגרש מוגבל - והרי התוצאה
בית דו‑קומתי בשומרון, בשטח של כ‑200 מ"ר, תוכנן בגישה הוליסטית עם תשומת לב למרחבים ירוקים ולזרימה בין הפנים לחוץ, ובו כל חדר הפך למרחב תומך ונעים שמייצר שקט - חלל ציבורי מואר, ציר נגרות מרכזי, מטבח בלב הבית, פינת למידה פתוחה לילדים ומשרד ביתי שמשתלב בטבעיות

הדיירים: זוג הורים בתחילת שנות ה-40, העובדים בהייטק ובתחום החינוך, וארבעה ילדים בגילי גן עד חטיבת ביניים.
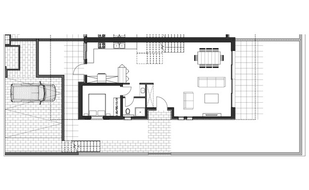
הבית: ממוקם ביישוב צופים בשומרון, בשכונה חדשה עם נוף פתוח. בית דו-קומתי בשטח של כ-200 מ"ר על מגרש בגודל 260 מ"ר. הבית נבנה במסגרת פרויקט קבלני, אך ניתנה בו גמישות מלאה לבצע שינויים במעטפת, בחזיתות ובשטחי הבנייה. בזכות זה יכולנו לתכנן מחדש את הבית עוד לפני הגשת ההיתר. הפרויקט תוכנן מתוך שיטת "הבית המקבל", גישה תכנונית שאנחנו מפתחות המקשרת בין עיצוב, רגש ונפש במטרה לייצר חוויית רווחה ובית מאוזן. הבית כולל 5 חדרי שינה, חלל ציבורי גדול, פינת משפחה ומשרד ביתי, ואוכלס מיד עם סיום הבנייה והעיצוב.
החזון: הדיירים הגיעו לתהליך ללא חזון עיצובי מגובש, אך עם הרבה פתיחות ואמון והעניקו לנו יד חופשית לתכנן מתוך הקשבה לצרכים האמיתיים של המשפחה. עם הזמן התחדדו כמה עקרונות מנחים. האם מאמינה בגישה המונטוסורית, והיה לה חשוב שהבית יאפשר לילדים גישה חופשית למשחק, יצירה ועצמאות דרך אזורים נגישים ונעימים לעין. בעקבות הקורונה עלתה גם חשיבות של יצירת משרד ביתי אבל לא מנותק. גם פינת הלמידה לילדים מוקמה בלב הבית, בסמוך למטבח גלויה, זמינה, אך מאפשרת ריכוז.
האתגר המרכזי היה להפוך תכנית קבלנית גנרית לבית חי, גמיש ואישי. בזכות האפשרות לשנות את המעטפת והחזיתות, שינינו לגמרי את התכנון מתוך הסתכלות הוליסטית על אור, זרימה ותנועה יום-יומית.




משך השיפוץ ועלותו: תהליך התכנון והליווי ערך כשלוש שנים, החל באוקטובר 2021, והסתיים עם אכלוס הבית באוגוסט 2024, זאת בתקציב ממוצע שנבנה מתוך סדרי עדיפויות מוקפדים וחשיבה לטווח ארוך. ההשקעה כללה תכנון אדריכלי מחודש, עיצוב פנים, ליווי שינויי דיירים, תכנון וביצוע עבודות נגרות, תשתיות חשמל ותאורה, מטבח, חיפויים, ריצופים, ריהוט וסטיילינג מלא לקראת אכלוס.
את קומת הכניסה מלווה ציר נגרות פונקציונלי שחוצה את הבית לכל אורכו: מתחיל בספרייה המשרתת את הסלון, ממשיך דרך המטבח, מול הכניסה ארון תיקים ומעילים, פינת הלמידה לילדים, ומגיע עד למשרד הביתי.
המטבח ממוקם בלב הבית, שינוי מהתכנון הקבלני המקורי שבו הוצב באזור צידי. כעת הוא פתוח, מואר ומזמין, בגוון עץ בהיר וחם, משטח אבן בהירה ואי מרכזי רחב שמאפשר ישיבה של כל בני המשפחה.
פינת הלמידה לילדים ממוקמת בהמשך ישיר למטבח, מקום שקט אך חשוף, שמאפשר להורים להיות נוכחים אך לא מפריעים. לצידה ארון עם מגירות אישיות לכל ילד, מתוך גישה מונטוסורית של סדר ואחריות. בין פינת הלמידה למטבח נמצא ארון אחסון רחב לתיקים ומעילים.
המשרד הביתי ממוקם בהמשך לציר הנגרות, ומופרד מהחלל הציבורי באמצעות ויטרינת זכוכית. זהו אזור עבודה נעים עם קשר ישיר לגינה הקדמית.
הסלון פונה אל הגינה הראשית, עם ויטרינה רחבה שמכניסה אור טבעי ותחושת זרימה בין פנים לחוץ. הספה בגוון ניטרלי ופרקטי, הבחירה מתכתבת עם הקו הפונקציונלי של הבית כולו.
פינת האוכל ממוקמת במרכז הקומה, עם שולחן עץ וכיסאות בגוון שחור, שילוב של חומר טבעי ונוכחות גרפית שמאזנת את החמימות הכללית.


גרם המדרגות, הממוקם בצמוד לכניסה, מלווה בצמחייה שממשיכה את הקו הירוק של החוץ בזכות החלון הגדול שפונה לגינה הצידית. עציצים לצד קיר הזכוכית יוצרים המשכיות טבעית, כאילו הטבע חודר פנימה.
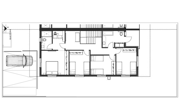
בקומה העליונה ממוקם אזור משפחה פתוח עם ספת רביצה, מוקד התכנסות נוסף לילדים.
חדרי הילדים תוכננו בגישה רגישה ופרקטית עם צבעוניות רגועה, פתרונות אחסון נגישים ותכנון שמתאים לגדילה. חדר הרחצה של הילדים כולל רצפת טרצו, חיפויים בהירים ונגרות בגוון גרפיט, עמידה, פרקטית ומותאמת לחיי משפחה.
חדר ההורים כולל חדר רחצה עם חיפוי בגוון כחול כהה, צבע עמוק ודימוי נוסף מהטבע, וחדר ארונות בגוון מנטה ירקרק.
לבית שלוש גינות: גינה צידית שמלווה את הכניסה והבית לכל אורכו; גינה קדמית שפונה לרחוב, מחוברת למשרד; גינה מרכזית ורחבה הפונה מהסלון ופינת האוכל, הלב הירוק של הבית. החיבור לגינות אינו אסתטי בלבד, אלא חלק מהתפיסה של הבית כמרחב רגשי פיזי שמזין את הנפש ומווסת את היום-יום. זהו לב הגישה של "הבית המקבל", בית שלא רק נראה טוב, אלא מרגיש נכון.
דבר המעצבים: העבודה עם הדיירים הייתה קרקע יציבה, שקטה ומלאת אמון, מהסוג שמאפשר לא רק לעצב בית, אלא לבנות מערכת יחסים, להקשיב לעומק וליצור שפה משותפת. מהמפגש הראשון היה ברור שהם בוחרים לסמוך, וזו אולי הבחירה הכי משמעותית בתהליך כזה. בתוך תקופה של חוסר ודאות, גיוסים, מלחמה ותחושת כאוס, התכנון הפך לעוגן, משהו להיאחז בו. והבית הזה, עם כל פרט קטן בו, הפך לא רק לתוצר עיצובי אלא למרחב שמכיל שגרה, מחזיר שליטה ומכניס תקווה.
הצלחנו ליישם את שיטת "הבית המקבל" במלואה, לחשוב לא רק על איך הבית ייראה, אלא על איך הוא ירגיש. איך האור ייכנס, איך התנועה תזרום, איך מרחב העבודה יתמזג עם מרחב המשפחה, איך הילדים ירגישו שייכים. תרגמנו את הצרכים, ההרגלים, והקצב של המשפחה למערך מגורים רך, גמיש ונינוח, כזה שמאפשר להיות בו פשוט כמו שאתה.
לא היה כאן מאבק על אג'נדות. רק הקשבה הדדית. לא סיפור של עיצוב שמכתיב, אלא עיצוב שמכיל. זו הייתה חוויה עמוקה ומדויקת, ואולי הרגע הכי מרגש הוא ההודעה שממשיכה להגיע כמעט בכל שישי "לא מאמינה שזה באמת הבית שלי".



טיפ: בית טוב נולד מהקשבה, לא רק מתמונה יפה. עיצוב הוא לא רק איך שהבית נראה בסוף, הוא איך שהתחושה נבנית לאורך הדרך. כל תהליך עיצובי מושפע מהכימיה, מהשיח, מהרגעים שבין הפגישות, מהשאלות שנשאלות ומהאמון שנוצר. לכל מעצבת יש שיטה, דרך, שפה.
אצלנו, השיטה מבוססת על הקשבה, לא רק למה שנאמר, אלא גם למה שלא. מה שמתחיל בצרכים, שגרות, מגבלות ולפעמים גם בלבול, מתגבש לתכנון שמרגיש נכון בגוף. אם יש משהו שחשוב יותר מכל טרנד זו הבחירה במי שילך איתכם את הדרך הזו. כי בית הוא לא מוצר, הוא תהליך. ולתהליך הזה יש משמעות עמוקה שלא תמיד רואים בתמונות.
פריט אהוב: ללא ספק, ציר הנגרות שמלווה את קומת הקרקע - זהו הלב הפונקציונלי והעיצובי של הבית. הוא נבנה כתגובה ישירה לצרכים של המשפחה שחיפשו אחר סדר, זרימה ונגישות. זה פריט שמעיד על התכנון כולו, לא רק יפה, אלא גם נוכח, פרקטי ומייצר גמישות לאורח החיים. מבחינתנו זו בדיוק ההגדרה לבית שמקבל.

רשימת מכולת:
זוג שולחנות קפה עגולים, 3108 שקל, IDANA תל אביב
ארונית "בית" בחדר ילדים, 1190 שקל, LET ME BE
שולחן אוכל- 6,952 שקל - סימפלי ווד
כסאות פינת אוכל - 590 שקל - סימפלי ווד
מיטת מעבר בחדר הילדים - 1,350 שקל - LET ME BE
עיצוב פנים: STUDIO SHATSKY EYLON (שאטסקי-אילון) - מרינה שאטסקי וטל אילון פרג'ון
תכנון אדריכלי: בשיתוף "במרחב אדריכלות" - אדריכלי הפרויקט מטעם הקבלן של הפרויקט
סטיילינג לצילומים: רעות פרידמן ברוכי