צפון תל אביב: כשהלקוחה מבקשת לאבזר את כל הדירה רק מאתרי אונליין
משפחה רכשה דירה ותיקה בת 180 מ"ר עם קומת גג, ופנתה למעצבת עדי שקד כדי להתאים אותה לצרכיה – מחדרי ילדים גדולים עם חדר רחצה משותף ועד מטבח עם שני מקררים וחדר עבודה. התוצאה: חלל מתוכנן בקפידה עם פתרונות אחסון יצירתיים, נגרות מותאמת ופריטים שהוזמנו במיוחד מאתרי אונליין בארה"ב

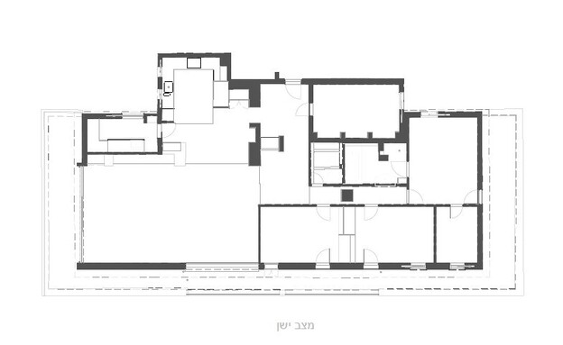
דירה בת שישה חדרים בשטח של 180 מ"ר עם קומת גג בצפון תל אביב נרכשה על ידי זוג עם שלושה בנים. הבניין שבו היא ממוקמת עומד כבר עשרות שנים, ומצבה של הדירה דרש שיפוץ מלא כולל החלפת תשתיות ותכנון מחדש שיתאים לצורכי המשפחה.
לשם כך פנו בני הזוג למעצבת הפנים עדי שקד, וביקשו חדרי ילדים גדולים ומרווחים וחדר רחצה אחד גדול לשלושתם. נוסף לכך, נדרשו מקומות אחסון רבים, חדר כביסה, מטבח גדול הכולל שני מקררים וחדר עבודה.
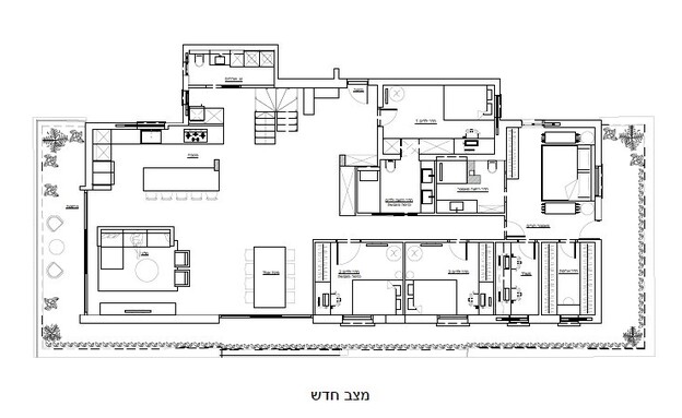
השיפוץ נמשך כשבעה חודשים, לאחר חודשים ארוכים של תכנון מדויק ובחירת חומרים מוקדמת. קירות חדר הכביסה המקורי נשברו, והמטבח הועבר כך שימוקם ליד פינת האוכל והסלון במקום להיות חבוי כפי שהיה במקור, וזכה לרבדים עיצוביים – "כל חזית עשויה מחומר שונה ומציגה טקסטורה, צבע או פרטי נגרות אחרים, כך שנוצר מראה עשיר ומלא עניין בלי להכביד".




חדר הכביסה מוקם מאחורי גרם המדרגות כדי להסתירו מהעין, ובאותו אזור נוסף גם חדר שירותי אורחים. שירותי האורחים המקוריים אוחדו עם חדר הרחצה שהיה קיים, כדי לייצר חדר רחצה גדול לשלושת הבנים עם מקלחון רחב, כיור כפול ומקום תמרון נוח. החדר תוכנן עם שתי דלתות – האחת היישר מחדרו של הבן המתבגר והשנייה ממסדרון חדרי השינה – וכן תוכנן גם להיות מונגש במקרה הצורך בעתיד.
בתוך יחידת ההורים שובץ חדר עבודה פרטי המאפשר עבודה מהבית. בכניסה לבית מוקמה קונסולה דקורטיבית, ומולה תוכנן ארון שעוטף עמוד קונסטרוקטיבי קיים. הארון נפתח לשני כיוונים – לכיוון דלת הכניסה, כדי לאפשר אחסון של נעליים, תיקים ומפתחות, ולכיוון המטבח, שם הוא משמש לאחסון עמוק יותר, כולל מקום ייעודי למטאטא, יעה ושואב אלחוטי.




החלל הציבורי של הדירה, הממוקם מימין לכניסה, כולל מטבח, פינת אוכל, סלון עם יציאה למרפסת היקפית, חדר כביסה ושירותי אורחים. בדרך אליהם מוקם מזווה אחורי ובו מקרר נוסף לגיבוי. החלל הפרטי של הבית, הממוקם משמאל לכניסה, כולל את חדרי הילדים ואת יחידת ההורים עם חדר ארונות, חדר עבודה וחדר רחצה פרטי.
במהלך הפרויקט, מספרת שקד, נדרשה התמודדות עם עמודים ישנים. במטבח שובץ העמוד כחלק מהאי, בכניסה לדירה הוטמע בעבודת נגרות כך שהוא סמוי מהעין, ובחדר הרחצה של ההורים נוצל ליצירת חציצה בין האסלה לבין המקלחון.



בקשה ייחודית נוספת הייתה לרהט ולאבזר את כל הבית באמצעות רכישות מאתרי אונליין בארה"ב. "כמעצבת נדרשתי לאתגר שמעולם לא יצא לי להתמודד איתו", מספרת שקד, "הלקוחה ביקשה לבצע את כל רכישות הדירה, מהריהוט ועד לטפטים, מאתרים בארה"ב. כמעצבת אני רגילה ואוהבת להכיר כל ספק, לבחון כל פריט, להרגיש את הבד ולבחור את הגוון במציאות ולא בתמונה. מצאתי את עצמי מרהטת ומאבזרת דירה שלמה דרך אתרי אונליין, מה שבהחלט הוציא אותי מאזור הנוחות שלי, והכניס אותי למתח גדול עד הגעת המכולה לארץ ופריקת כל הציוד בדירה. אם בכל התהליך אני זו שחיזקתי את הלקוחה ונטעתי בה אומץ להעז, לא לחשוש, לא לדאוג, לבטוח ולהאמין, אז פה התהפכו היוצרות. היא החזיקה לי את היד והרגיעה אותי עם הביטחון שלה בתהליך הרכישה מרחוק". המעצבת מוסיפה כי היא שמחה שהקשיבה לה כי התוצאה ייחודית. "כך נחשפנו להיצע שלא קיים בארץ, לאפשרויות מגוונות הרבה יותר וכמובן למקסום של התקציב".




הפריטים שכן נרכשו בארץ הם: תאורה (כלי אור), ספריית הסלון, שתוכננה בשיתוף וייצור של סטודיו סינגר, הספה בסלון (בדוסה), והכורסאות (רהיטי כרמי).
אחד הפריטים הבולטים בבית הוא כיסאות הבר שהוזמנו מאתרCB2 , לדברי שקד הם מוסיפים אופי לחלל הציבורי ומהווים דוגמה לשילוב פריט עיצובי שמעשיר את החלל במקום להשתלט עליו. הבחירה בכלל הפריטים לדבריה נעשתה בקפידה, מתוך מחשבה על הקשרים בין החומרים, הצבעים והטקסטורות, כדי להימנע מתחושת עומס או תחרות ביניהם.





"החוויה שלי מהפרויקט היתה מדהימה בזכות שני דברים", מסכמת המעצבת, "הלקוחה, שהיא בעלת טעם מיוחד, הייתה פתוחה לרעיונות, לא חששה להעז ולא משכה לשבלונות, והקשר בינינו - הייתי מאוד קשובה לרצונות שלה והיא מצידה מאוד סמכה עלי. הדינמיקה הזו מייצרת המון אמון ואפשרות להגיע לתוצאות מדויקות".
עיצוב פנים: עדי שקד
סטיילינג לצילומים: מאיה לבנת הרוש




